LOCAL COMERCIAL EN VENTA EN LA CALLE JORGE TORNER, CUENCA

Cuenca

Ref. 3368 92 m2
venta: 123.500 
venta anterior: 130.000 €

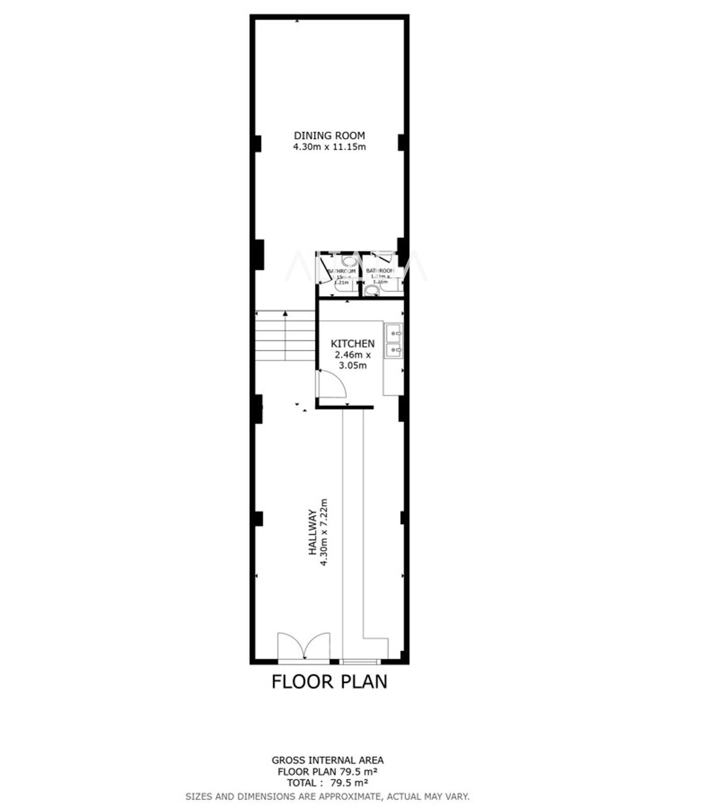
ALTALIA INMOBILIARIA en Cuenca te ofrece este magnífico local en venta en la calle Jorge Torner en Cuenca capital. Este inmueble cuenta con una sala principal de unos 40 metros aproximadamente que cuenta con una barra y espacio para varias mesas, una cocina, dos aseos y otra sala comedor. El local ha sido remodelado, con mejoras como suelo porcelánico, la zona de la barra, instalación eléctrica y fontanería. Tiene licencia de bar, calefacción central y se encuentra listo para entrar. 

Si estás buscando montar tu próximo negocio, te presentamos esta gran oportunidad, con una ubicación ideal, cercana al centro, a transporte público, comercios y parques, perfecto para quienes buscan un local cómodo y bien comunicado. 

Características destacadas:

• Superficie: 92 metros cuadrados

• Sala con zona de barra

• Sala con zona-comedor 

• Cocina 

• Dos aseos

¡No dudes en visitarlo! Contacta con ALTALIA GRUPO INMOBILIARIO para más información.

Índice de alquiler

Año de construcción 1965
Construidos 92 m2
Útiles 80 m2
Precio/m² 1.342
Estado BUENO
Calificación Energética (E) VER
Luz
Agua

Visita Virtual

Inmuebles similares:

 

.

 65 m2  0  1
103.000 €
 

.

 142 m2  0  0
115.000 €
Contacta con tu asesor
Denisa Maria Dragomir
Solicita información

Si deseas más información sobre esta propiedad, por favor, rellena el formulario: